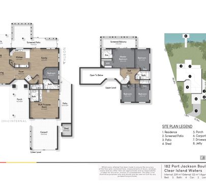
This two-story brick home is nestled in a tranquil cul-de-sac within the highly desirable area of Clear Island Waters. Its meticulous design reflects the owner’s refined taste, evident from the steel frame construction to the cathedral ceilings. The expansive pontoon, over a 28-meter frontage on the main river, offers an ideal location for family to wet a line.
Encompassing 5 bedrooms, the master bedroom boasts an ensuite, walk-in robe, and a private enclosed balcony to overlook the main river. Remaining 4 bedrooms are all equipped with built-in robes as well. Central kitchen offering panoramic water views, is accompanied by ample storage space and top-of-the-line Ariston appliances. One set of granny flat offers extra space and privacy to visitors/ friends.
Features:
-1000M2 land for nature-love families
-6 bedrooms, 4 bathrooms, 4 toilets and 4 car parking
-Dual living and dining/family room areas
-Granny flat with kitchen, bathroom, and laundry facilities
-Double garage plus two more car parks on driveway with secured gate.
-Pontoon with 28.3mtr canal frontage
-Outdoor undercover and enclosed entertainment area
-Fully fenced yard for kids and pets
-Garden shed, extra storages and low maintenance garden
-Pets allowed
Where to go:
-10 minutes to Broadbeach beach
-9 minutes to World class Pacific Fair
-4 minutes to Q Super Centre
-10 minutes to Robina town centre
-Local school, Bunnings, restaurants, Café and more
Please contact James 0416944899 to organize an inspection.
*** Property MUST be inspected in order for applications to be processed ***
Disclaimer: Whilst every effort has been made to ensure the accuracy of these particulars, no warranty is given by the vendor or the agent as to their accuracy. Interested parties should not rely on these particulars as representations of fact but must instead satisfy themselves by inspection or otherwise.



